Aluminiumfenster Superial i+
Für Fenster, Türen und Vitrinen mit hoher Wärmedämmung
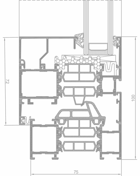
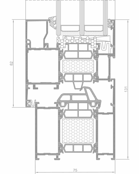
Dieses System ist für den Bau von Fenstern, Türen und Schaufenstern mit hohen Wärmedämmparametern sowohl in Wohngebäuden als auch in öffentlichen Gebäuden bestimmt. Hohe Wärmedämmparameter werden durch die Verwendung spezieller Wärmeeinlagen erreicht, die zwischen den Wärmedämmstreifen und um das Glas herum eingefügt werden und so die Querschnittsdämmung um 0,2–0,4 W/m2K verbessern. Das System ermöglicht die Realisierung moderner Fensterbaulösungen.
Weitere Informationen
- eine große Auswahl an verfügbaren Profilen garantiert die gewünschte Ästhetik und Festigkeit der Konstruktion
- Es ist möglich, Fenster in Fassadensysteme einzubauen
- Glasleisten in rechteckiger und abgerundeter Ausführung erhältlich
- Profilformen, die an die Installation verschiedener Arten von Randbeschlägen angepasst sind, einschließlich verdeckter Scharniere und PVC-Beschläge
- Eine große Auswahl an Verglasungen ermöglicht den Einsatz aller gängigen Einkammer-, Zweikammer-, Akustik- und Einbruchschutzgläser
- Profilentwässerung in zwei Varianten erhältlich: traditionell oder versteckt
- Profilbiegeoption
- Möglichkeit einer niedrigen Schwelle bei ein- und zweiflügeligen, rechteckigen Balkontüren (Konstruktionen mit speziellen Profilen); zusätzliche Erhöhung der Dichtheitsparameter der Konstruktion durch den Einsatz der Dichtung ACRS461
- Das Design der SPi, SPi+ Systeme basiert auf dem bewährten, umfangreichen und geschätzten Superial-Basissystem
- Reichhaltige Farbpalette RAL-Palette (Qualicoat 1518), Strukturfarben, holzähnliche Farben Aliplast Wood Color Effect (Qualideco PL-0001), Anode (Qualanod 1808), zweifarbig
Produktspezifikation
| fragst | Material | Rahmentiefe | Flügeltiefe | Verglasungsdicke | Fenstertyp |
| SP | Aluminium/ Polyamid | 75mm | 84mm | 14-61 mm | einflügelig, zweiflügelig, nach außen öffnend, nach innen öffnend |
| SP i+ | Aluminium / Polyamid | 75mm | 84mm | 14-61 mm | einflügelig, zweiflügelig, nach außen öffnend, nach innen öffnend |
Technische Daten
| fragst | Wärmedämmung Uf* | Luftdurchlässigkeit | Windlast | wasserdicht |
| SP | Uf ab 1,41 W/m2K | Klasse 4; Norm PL-EN 12207 | Klasse C5/B5; Norm PL-EN 12210 | Klasse E1950; Norm PL-EN 12208 |
| SP_i+ | Uf ab 1,08 W/m2K | Klasse 4; Norm PL-EN 12207 | Klasse C5/B5; Norm PL-EN 12210 | Klasse E1950; Norm PL-EN 12208 |
individuelle Furniere


