Genesis 75
Perfekt für Fenster mit erhöhter Wärmedämmung
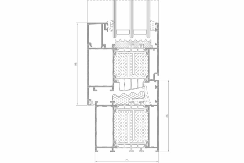
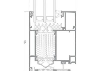
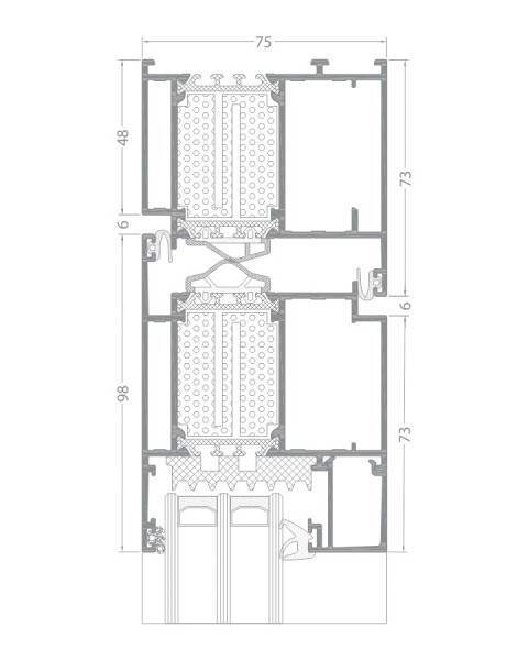
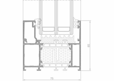
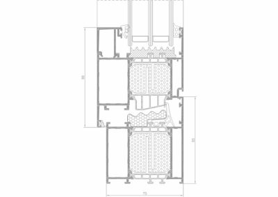
Basis des Dreikammer-Fenster- und Türsystems Genesis 75 sind Rahmenprofile mit einer Bautiefe von 75 mm. Eine große Auswahl an Profilen im Genesis 75-System ermöglicht die Gestaltung moderner Fenster, Türen und Vitrinen, die sich durch hohe Funktionalität auszeichnen. Die im Genesis 75-System verwendeten modernen Isoliermaterialien sind eine Neuheit auf dem Markt – neben der klassischen zentralen Fensterdichtung wurde eine zusätzliche thermische Dichtung entwickelt, die Luftdurchlässigkeit, Wasserdichtigkeit und eine hohe Ästhetik des Produkts gewährleistet. Das System eignet sich ideal für öffentliche Gebäude sowie Ein- und Mehrfamilienhäuser.
Weitere Informationen
- Die thermischen Parameter des Fensters Genesis 75 erfüllen die ab 2021 geltenden Anforderungen (Uw ab 0,90)
- Das System bietet die Wahl zwischen verschiedenen Profilausführungen (einschließlich Renovierungsprofilen), die der Fensterkonstruktion einen individuellen Charakter verleihen
- Das System ermöglicht auch eine Ganzglas-Eckverbindung im 90-Grad-Winkel
- Option Genesis OUT verfügbar (Genesis OUT i, Genesis OUT i+) nach außen öffnende Fenster
- Möglichkeit der Herstellung von Paneeltüren auf Basis des Türsystems Genesis 75
- Große Farbpalette RAL-Palette (Qualicoat 1518), Strukturfarben, Holzfarben Aliplast Wood Colour Effect (Qualideco PL-0001), Anode (Qualanod 1808), Bicolor
Produktspezifikation
| fragst | Material | Rahmentiefe | Flügeltiefe | Verglasungsdicke | Fenstertyp | Türtyp |
| GN 75 Fenster | Aluminium / Isoliermaterial | 75mm | 84mm | fix 1 – 56mm / 9-65mm | Wände, Festfenster, Drehkippfenster | – |
| Türen GN 75 | Aluminium/Polyamid | 75mm | 75mm | 1 – 59 mm | – | Einzeltür, Doppeltür, nach außen öffnend, nach innen öffnend, Paniktür |
Technische Daten
| fragst | Wärmedämmung Uf* | Luftdurchlässigkeit | Windlast | wasserdicht |
| GN 75 Fenster | Uf ab 0,84 W/m2K | Klasse 4; PN-EN 12207 | Klasse C4 (2400 Pa); PN-EN 12210 | E2400 (2400 Pa); PN-EN 12208 |
| GN-Tür | Uf ab 1,625 W/m2K | Klasse 4; PN-EN 12207 | Klasse C5 (2000 Pa); PN-EN12210 | E1200 (1200 Pa); PN-EN 12208 |
| GN i+ Türen | Uf ab 1,195 W/m2K | Klasse 4; PN-EN 12207 | Klasse C5 (2000 Pa); PN-EN12210 | E1200 (1200 Pa); PN-EN 12208 |
individuelle Furniere


